Contact Caden

256sqm Office Space for Lease Brisbane CBD

Available now, this 256sqm office space for rent in Brisbane CBD offers a high-quality, fully fitted workplace for businesses seeking a professional, ready-to-occupy solution in a prime CBD location.

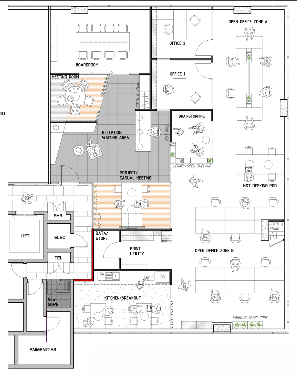
Positioned on Level 13 of 100 Edward Street, the suite accommodates up to 23 staff and provides a smart balance of private offices, open-plan workstations and dedicated meeting rooms. The layout supports collaboration and focus, making it ideal for growing teams looking to establish or elevate their CBD presence.

For businesses searching for a commercial office for lease in Brisbane that delivers on location, amenity and functionality, this tenancy stands out within the heart of the CBD.

Tenancy Features include:

• 21 x open-plan workstations with dedicated hot desk area
• 2 x private glass-fronted offices
• Collaboration zones
• Welcoming reception area
• 8-person boardroom &
• 5-person meeting room
• Modern kitchen/breakout with city views and natural light
• Utility & storage areas

Building Highlights

• Prime Midtown CBD location with excellent transport links
• End-of-Trip facilities with showers, lockers & secure bike storage
• Onsite car parking available
• Secure lift access and building entry
• Surrounded by cafés, retail and major corporate neighbours

Contact us today to arrange an inspection or request further details on this office space for lease in Brisbane CBD.
Floor Area

256sqm

Asking Rent (Pre-Incentive)

231680

Ben Lee

Leasing Executive

Enquiry Form