Contact Caden

2nd Generation Spec Fit Out – Coming Soon

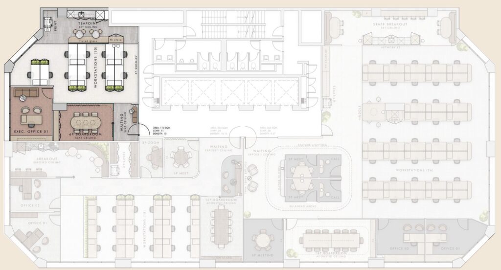
Situated on Level 14 at 15 Adelaide Street, this 112sqm office space for lease in Brisbane CBD presents an excellent opportunity to secure a high-quality second generation spec fit out in a well-established commercial building. This commercial office for lease Brisbane is designed to support a professional working environment and is well suited to legal, government, and corporate occupiers seeking a functional, ready-to-occupy solution.

Located in the heart of Brisbane’s legal precinct within the North Quarter, the tenancy benefits from a highly regarded and well-connected CBD position. The existing layout supports efficient day-to-day operations while also offering flexibility for businesses looking to adapt the space to suit their specific needs.

Tenancy Features Include:
  • Suitable for 10x staff
  • Waiting area
  • 10x open-plan workstations
  • 1x executive office
  • 1x boardroom (6p)
  • Teapoint and breakout area

Perfectly positioned in the heart of Brisbane’s legal and government precinct — just 400m from the Supreme and Magistrates Courts and moments from major transport links and the Queen Street Mall. A favourite among legal and professional services tenants, this premium location offers both prestige and convenience.

Contact us today to inspect and secure this office space for lease in Brisbane’s CBD.

 

Floor Area

112sqm

Asking Rent (Pre-Incentive)

89600

Lewis Harper

Director

Ben Lee

Leasing Executive

Enquiry Form

Similar Offices

Explore All Offices
  • Available Immediately