

High-profile corner tenancy with natural light — available November 2025
Position your business on Level 6 at 243 Edward Street, a high-profile corner location in Brisbane’s CBD. This 150 sqm light-filled suite faces Adelaide Street and offers a premium turnkey fit-out ideal for teams wanting a contemporary, ready-to-move-in workplace. Your clients will appreciate the convenience of nearby cafés, restaurants and premium retail, the tranquil ANZAC Square gardens for informal catch-ups, and effortless access to Central Station, bus services and the Queen Street Mall.
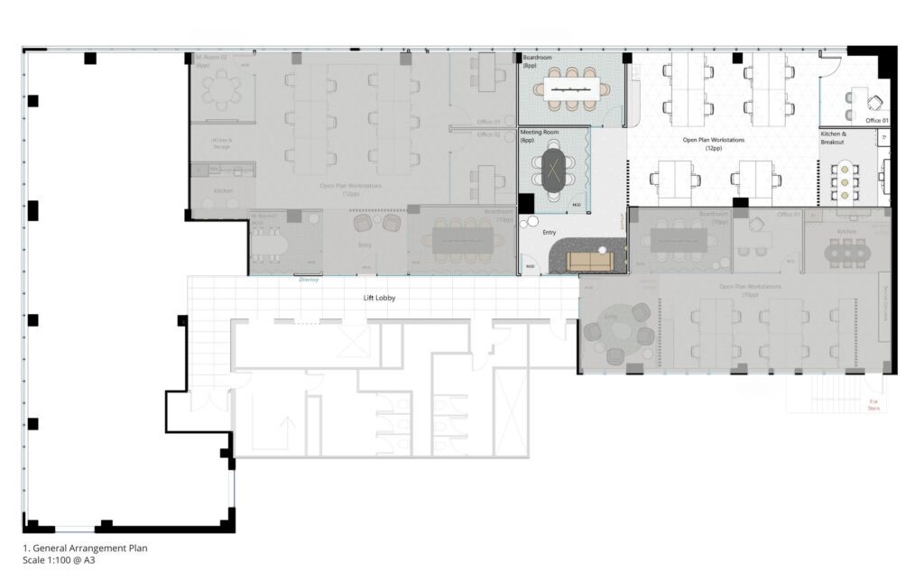
Tenancy features:
- Professional entry and reception area
- 8-person boardroom
- Private executive office
- 12 open-plan workstations designed for efficient team workflow
- Kitchen and breakout space with modern finishes
- Windows along Adelaide Street maximising daylight and street presence
Building highlights:
- High-visibility CBD corner address — Edward & Adelaide Streets
- Steps from Queens Plaza, Queen Street Mall and ANZAC Square gardens
- Only 180 m to Central Station and close to King George Square bus services
- Upgraded lobby and shared amenities throughout
- End-of-trip facilities including bike storage and showers
Perfect for businesses searching for a commercial office for lease in Brisbane CBD with strong street presence and a move-in-ready fit out.