Contact Caden

New Spec Fit Out Under Construction – Available April 2026

Located in Brisbane’s iconic Golden Triangle, Level 7 at 410 Queen Street presents a rare opportunity to secure commercial office space for lease in Brisbane’s CBD. This brand-new 143sqm office space for rent in Brisbane’s Golden Triangle delivers a contemporary spec fit out ideal for boutique teams seeking a professional and connected CBD address.

Currently under construction, the new spec fit has been carefully designed to maximise natural light and create an inviting environment that supports collaboration, focus, and productivity. Set within the city’s most connected business precinct, the building offers unbeatable convenience with cafés, dining, retail, and the riverwalk just moments away, creating an ideal balance between work and lifestyle.

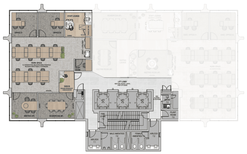
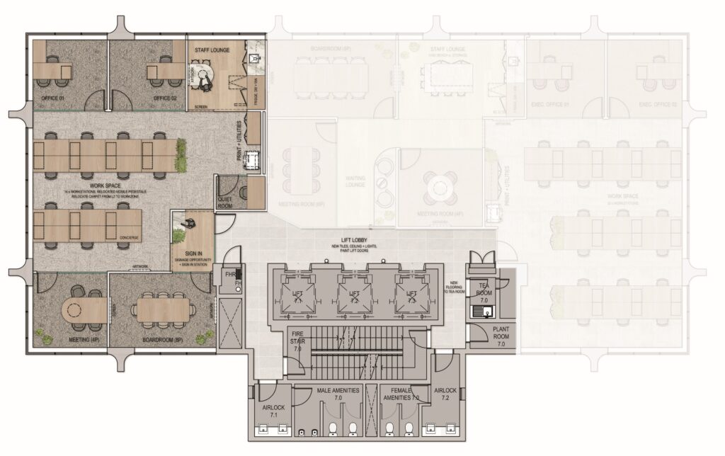
Suite Layout Details:
  • 14 workstations in an open-plan setting
  • 2 x executive offices
  • 8 person boardroom
  • 1 x 4 person meeting room
  • 1 x quiet rooms
  • Team huddle area
  • Collaboration lounge
  • Kitchen and staff breakout zone
  • Utilities and storage
  • Welcome/reception area

Abundant natural light and river glimpses create an uplifting workspace, while warm finishes and thoughtful detailing make the office feel inviting and professional. Staff can enjoy morning coffee catchups, quick team huddles, or relaxed afternoon meetings in the breakout and lounge areas — all designed to enhance connection and productivity.

Positioned in the Golden Triangle, the location puts cafés, dining, and the riverfront boardwalk on your doorstep, offering the perfect balance between work and lifestyle.

Highlights:
  • 143sqm tenancy
  • Brand-new spec fit out under construction
  • Natural light and river glimpses
  • Designed for collaboration and productivity
  • Modern breakout and lounge spaces
  • Surrounded by cafés, dining, and retail
  • Available April 2026

Experience a commercial property for lease in Brisbane that’s designed for connection, productivity, and balance.

Contact Caden Office Leasing today to learn more about this office for lease in Brisbane CBD.

Floor Area

143sqm

Asking Rent (Pre-Incentive)

124410

David Prosser

Director

Enquiry Form

Similar Offices

Explore All Offices
  • Available Immediately