Contact Caden

New Spec Fit Out Under Construction – Available June 2026.

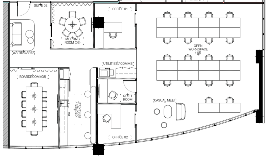
Situated on Level 7 at 60 Edward Street. This brand new 154sqm spec suite at 60 Edward Street offers more than just a workplace. It places your team at the centre of one of the city’s most connected and lifestyle rich business locations. The layout provides clear separation between focused work areas, collaboration zones and informal breakout spaces, supporting flexibility and team productivity. A office space for lease in Brisbane CBD, the suite combines efficient layout, strong natural light and immediate access to the amenity that defines the Midtown precinct.

Tenancy Features Include:
  • Suitable for 20x staff
  • Reception / waiting area
  • 18x open-plan workstations
  • 2x enclosed executive offices
  • 1x boardroom (10p)
  • 1x medium meeting room (5p)
  • Dedicated collaboration area
  • Large kitchen and breakout space
  • Utilities and dedicated storage area

Located on the edge of the Golden Triangle and just moments from Queen Street Mall, the ferry terminals, Central Station and the City Botanic Gardens, this address offers businesses a seamless blend of accessibility, lifestyle, and elevated presentation.

Coming Soon – Available June 2026.

Contact us today to inspect and secure this office space in Brisbane’s CBD.

 

Floor Area

200sqm

Asking Rent (Pre-Incentive)

185000

David Prosser

Director

Enquiry Form

Similar Offices

Explore All Offices
  • Available Immediately
  • Sublease
  • Available Immediately
  • Sublease
  • Available Immediately
  • Sublease
  • Available Immediately
  • Sublease
  • Available Immediately
  • Sublease