Contact Caden

Positioned in Brisbane’s prestigious Golden Triangle, Level 10 at 110 Eagle Street presents an opportunity to secure commercial office space for lease in Brisbane CBD within a tightly held riverside location.

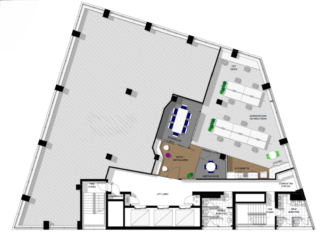
This 122sqm office suite fronts Eagle Street and is ideally suited to professional businesses seeking a well located Brisbane CBD base for up to 10 people. Positioned on an upper level, the tenancy benefits from strong natural light and an outlook that connects directly to the energy of the Eagle Street precinct.

The existing fit out has been designed to support both day to day operations and client engagement, comprising:

  • 10 workstations
  • Small meeting room
  • 8 person boardroom
  • Kitchen and breakout area
  • Welcoming reception area
  • Utilities and storage area

Available from July 2026, this offering provides businesses with the ability to plan ahead in one of Brisbane’s most desirable office locations.

About the Building
Located on the prominent corner of Eagle and Queen Streets, 110 Eagle Street is a boutique B Grade commercial office tower within Brisbane’s most sought after business address.

The building comprises 14 levels of commercial office space and offers excellent natural light throughout, with city and river outlooks from many floors. Modern workplace amenities support today’s workforce, including end of trip facilities and an upgraded lobby that delivers a strong professional first impression.

Connectivity is a key strength, with the Riverside Ferry Terminal just steps away, Central Station within walking distance and multiple bus routes nearby.

Lifestyle & Amenity
Tenants are surrounded by Brisbane’s best cafés, dining and bars, with Eagle Street Pier, Queen Street Mall and the Brisbane River boardwalk all on the doorstep. This location supports both productivity and wellbeing, offering easy access to lunchtime walks, after work networking and premium client entertaining options.

For further information or to discuss upcoming availability, contact us today.

Floor Area

122sqm

Asking Rent (Pre-Incentive)

97600

Ben Lee

Leasing Executive

Ella Butler

Leasing Executive

Enquiry Form

Similar Offices

Explore All Offices
  • Available Immediately