Contact Caden

Cold Shell Available Ready for Immediate Occupation.

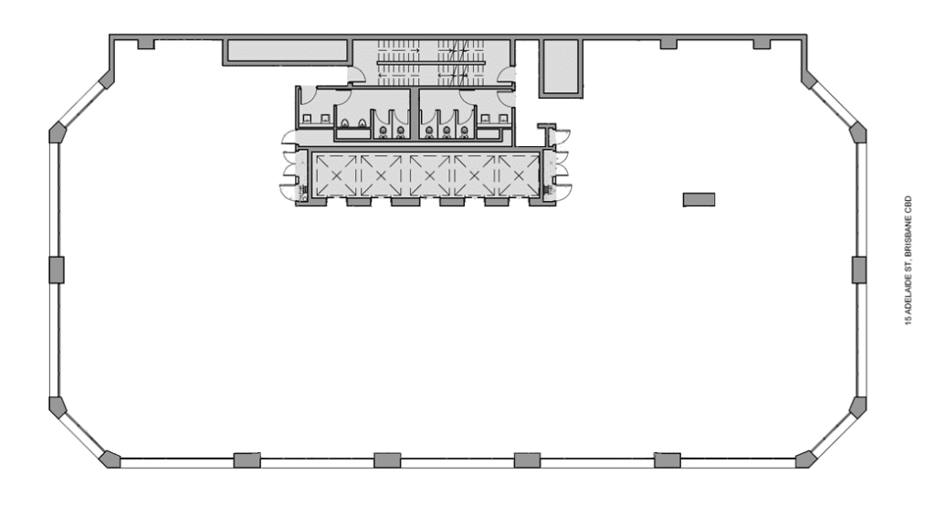
Situated on Level 17 at 15 Adelaide Street. This tenancy is presented as a Cold Shell that has great levels of natural light. Base build configuration where the owners will offer a healthy incentive and partner with a tenant to construct a new fit out. This tenancy is presented as a Cold Shell offering you flexibility to create your ideal space. Move in quickly and customise the interior to perfectly match your business needs and brand identity.

Perfectly positioned in the heart of Brisbane’s legal and government precinct — just 400m from the Supreme and Magistrates Courts and moments from major transport links and the Queen Street Mall. A favourite among legal and professional services tenants, this premium location offers both prestige and convenience.

Available Immediately.

Contact us today to inspect and secure this office space in Brisbane’s CBD.

 

Floor Area

739sqm

Asking Rent (Pre-Incentive)

587505

Lewis Harper

Director

David Prosser

Director

Enquiry Form