
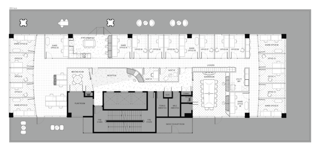
Existing 2nd gen spec fit out ready for immediate occupation. Situated on Level 4 at 157 Ann Street.
Pending Vacancy – Available Immediately.
Existing 2nd gen spec fit out ready for immediate occupation. Situated on Level 4 at 157 Ann Street.
Pending Vacancy – Available Immediately.
Looking to contact the Caden Team? Get in touch by giving us a call or drop us an email.
Looking for one of our expert agents? Get in touch by giving us a call. Get access to all CBD offices with our team.