

Existing fit out ready for immediate occupation. 239 George Street is located in the heart of the legal precinct of Brisbane’s North Quarter. In close proximity to major transport and retail hubs, only 300m from the new Magistrates courts and 600m from the Brisbane GPO. 239 George St offers quality office space with good natural light, a side lift core and excellent river views. Situated on Level 12 at 239 George Street.
Available Immediately.
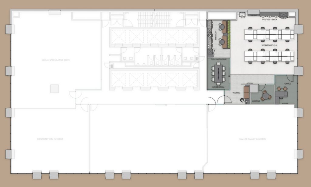
Tenancy Features Include:
- 16 x workstations
- 8p boardroom
- 3p meeting room
- 1 x office
- Waiting Area