

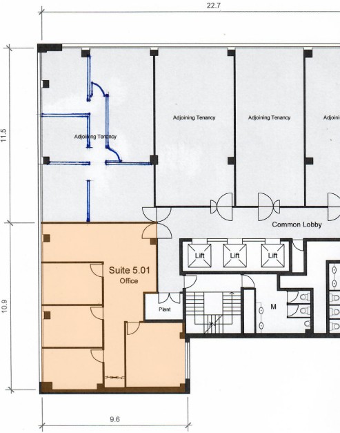
Existing fit out ready for immediate occupation. Situated opposite Queens Plaza, 243 Edward Street offers the opportunity to be located in the heart of the CBD. The building also benefits from being in close proximity to multiple forms of public transport as well as the Queen Street Mall retail precinct. Situated on Level 5 at 243 Edward Street.
Available Immediately.
Tenancy Features Include:
- Reception / Waiting Area
- 2x Workstations
- 4x Enclosed Offices
- 1x Small Meeting Room
- Suitable for 6x Staff