

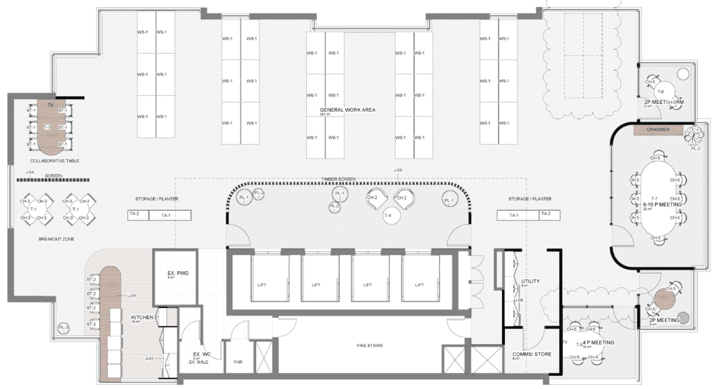
375m² Spec Fit Out Suite Coming Soon on Level 17
Located in Brisbane’s Transit Precinct, 270 Adelaide Street (Icon Place) is a modern office tower offering A-Grade commercial space in the heart of the CBD.
The 19-level building features a mix of fully fitted tenancies and larger floor plates with city views, complemented by end-of-trip facilities and excellent access to public transport. Positioned between Wharf and Creek Streets, it’s surrounded by cafés, restaurants and retail, creating an ideal environment for staff and clients alike.
Stay tuned for full details or contact us today to register your interest in this upcoming opportunity at Icon Place.