Contact Caden

High-Quality Fitted Office with Direct Garden Access – Brisbane CBD

Positioned directly opposite Central Station, 300 Ann Street delivers exceptional connectivity and a workplace environment designed to balance productivity, image, and lifestyle.

Available January 2026, Level 4 offers approximately 200sqm of fitted office space with a practical, well-designed layout and direct access to the building’s exclusive outdoor garden — a rare feature in Brisbane’s CBD. Staff wellbeing and client convenience are front of mind, with on-site parking, modern end-of-trip facilities, and lifestyle amenities including a pilates studio and nearby cafés and retail.

This tenancy delivers premium commercial office space for lease in Brisbane city, combining functionality, image, and connectivity in one sought-after location — ideal for businesses seeking office space for rent in Brisbane’s CBD.

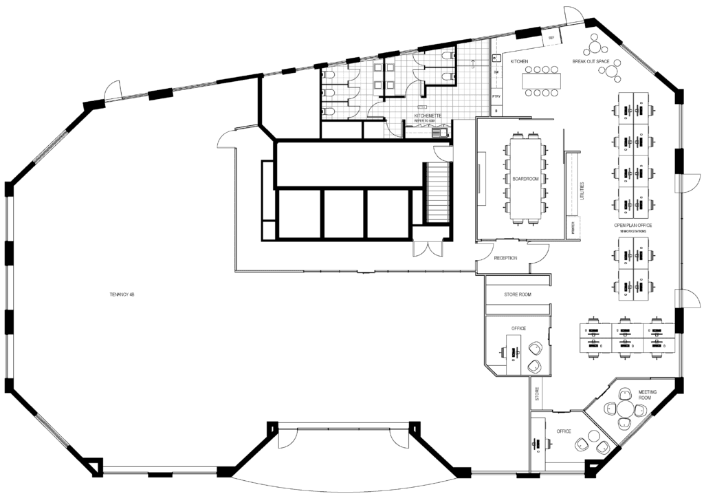
Tenancy Features

  • 18 open-plan workstations
  • 2 executive offices
  • 12-person boardroom
  • 4-person meeting room
  • Kitchen and breakout area
  • Storage and utilities area
  • Welcoming reception area
  • Direct access to the building’s outdoor garden
About the Building

300 Ann Street is a prominent commercial office building in Brisbane’s CBD, offering efficient, column-free floor plates, refurbished common areas, and upgraded building services that enhance workplace performance. With unbeatable public transport access, on-site parking, and lifestyle amenities, it provides a connected and contemporary environment ideal for modern businesses.

Building Highlights

  • Directly opposite Central Station with immediate access to train and bus networks
  • Refurbished commercial office building with upgraded services and modern finishes
  • Column-free floor plates that maximise usable space and flexibility
  • End-of-trip facilities with showers, lockers, and secure bike storage
  • On-site parking with both permanent and public options
  • Lifestyle and wellbeing amenities including a pilates studio and outdoor garden

Contact Caden Office Leasing today to learn more or arrange an inspection of this commercial property for lease in Brisbane CBD.

Floor Area

200sqm

Asking Rent (Pre-Incentive)

170000

Lewis Harper

Director

David Prosser

Director

Enquiry Form

Similar Offices

Explore All Offices
  • Available Immediately
  • Available Immediately