Contact Caden

Existing Fit Out – Available Now

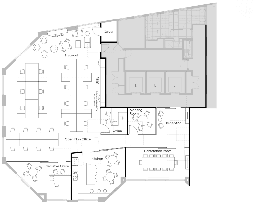
Situated on Level 6 at 300 Ann Street, this 305sqm office space for rent Brisbane CBD offers a fitted and functional workplace ideal for a team of up to 24 staff or any business seeking a strong CBD presence. Positioned within one of the city’s most connected commercial addresses, this tenancy presents a quality opportunity for companies looking for well located office space Brisbane with scale, presence and convenience.

This commercial office for lease features a practical layout that supports collaboration, focused work and client engagement. The space includes a large boardroom, executive offices, open plan work areas and a generous kitchen and breakout zone, making it well suited to professional teams seeking commercial property for lease Brisbane in a central location.

Tenancy Features Include:
  • Suitable for 24x staff
  • Reception / waiting area
  • 22x open-plan workstations
  • 2x enclosed executive offices
  • 1x boardroom (12p)
  • 1x small meeting room
  • Large kitchen and breakout area
  • Storage and utilities area

Positioned directly opposite Central Station, this office for lease Brisbane provides outstanding connectivity for both staff and clients, with immediate access to rail and bus networks. Queen Street Mall, surrounding cafés, casual dining and everyday services are all within easy walking distance, reinforcing the appeal of this central commercial lease Brisbane opportunity.

300 Ann Street is designed to support modern workplace expectations, with refurbished common areas, upgraded building services and efficient floor plates. Tenants also benefit from premium end of trip facilities including showers, lockers and secure bike storage, along with access to the building’s exclusive outdoor garden. This shared outdoor space is a standout feature, offering a place for fresh air breaks, informal meetings and a welcome change of environment throughout the workday. An on site pilates studio and nearby retail and dining options further enhance the day to day experience, creating a balanced and connected CBD workplace.

Contact us today to inspect and secure this office space in Brisbane’s CBD.
Floor Area

305sqm

Asking Rent (Pre-Incentive)

259250

Lewis Harper

Director

David Prosser

Director

Enquiry Form

Similar Offices

Explore All Offices
  • Available Immediately