Contact Caden

Existing Fit Out Ready For Immediate Occupation.

Situated on Level 4 at 300 Queen Street. This tenancy offers the perfect solution for businesses seeking a hassle-free workspace in the heart of the CBD. A high-quality professional fit out with immediate access to the city’s legal, financial and commercial hubs, making it an ideal option for legal practices, consulting firms, or other professional services seeking a premium CBD presence. Multiple private offices and an open-plan workspace ready to configure for support staff. With excellent natural light with parkland views from a low-rise position.

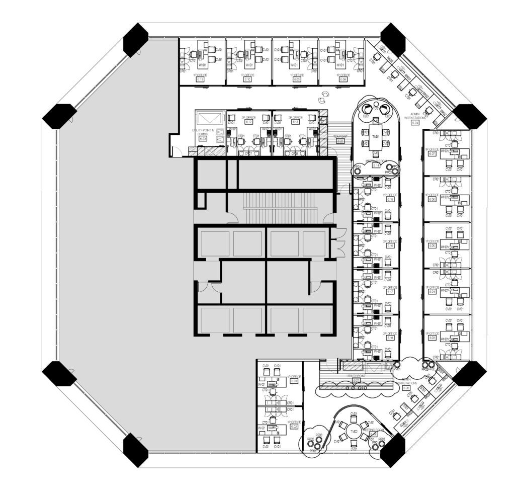
Tenancy Features Include:
  • Suitable for 93x staff
  • Reception / waiting area
  • 7x open-plan workstations
  • 12x enclosed executive offices (1 desk)
  • 9x enclosed executive offices (2 desks)
  • 1x boardroom
  • Kitchen and breakout area
  • Utility storage areas

Situated in the heart of Brisbane’s Golden Triangle, the building offers a recently revitalised lobby with a vibrant café and informal meeting spaces, creating a professional and welcoming arrival for staff and clients alike. Your team will enjoy direct access to Post Office Square’s green space, Anzac Square, the Queen Street Mall, and the Brisbane River dining precinct — with Central Station and major public transport just steps away.

Available Immediately.

Contact us today to inspect and secure this office space in Brisbane’s CBD.

 

Floor Area

441sqm

Asking Rent (Pre-Incentive)

418950

Lewis Harper

Director

Enquiry Form